U gebruikt een verouderde internetbrowser.
We raden u aan om de meest recente internetbrowser te installeren voor de beste weergave van deze website.
Een internetbrowser die up to date is, staat ook garant voor veilig surfen.

Helaas, dit pand is verkocht

8560 Wevelgem

Omschrijving

Prachtige, moderne halfopen bebouwing met 3 à 4 slaapkamers!

Een leuke en energiezuinige woning in een rustige omgeving ...

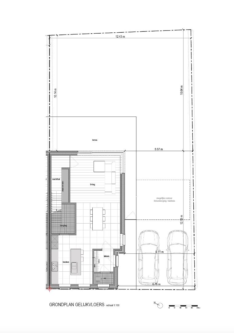
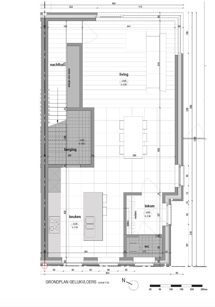
Vlakbij winkels, scholen en openbaar vervoer vinden we deze mooie nieuwbouwwoning terug. Deze maakt deel uit van de kleine verkaveling ‘’t Roodhuys’ bestaande uit 2 nieuwbouwwoningen en een totaalrenovatie van een oude herberg. De buitenkant onthult reeds dat het om een eigendom gaat die met de grootste precisie is afgewerkt. Langs de oprit, met plaats voor 2 wagens, bereiken we de voordeur die ons binnenleidt in een inkomhal met gastentoilet. Doorheen de glazen deur met zwart stalen frame kunnen we reeds proeven van de smaakvol ingerichte leefruimte. Door de grote raampartij met hoekraam achteraan worden we ondergedompeld in een zee van licht en ruimte. De leefruimte is opgedeeld in een zithoek op parket en een eethoek. Vanuit beide is er mooi zicht op de tuin. De open keuken bevindt zich langs de voorzijde van de woning. De keuken beschikt over een eiland en kan volgens eigen smaak worden ingericht. Aanpalend is er een handige berging.
Op de bovenverdieping vinden we de ouderslaapkamer, 2 kinderkamers, een apart toilet, de wasberging en de badkamer terug. De badkamer bestaande uit een dubbele lavabo en inloopdouche kan nog naar eigen smaak worden afgewerkt.
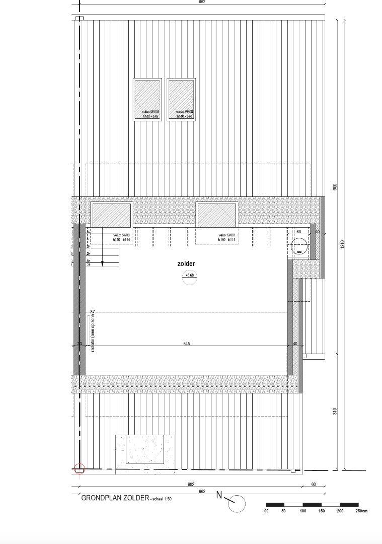
Een vaste trap brengt ons naar de zolder die mogelijks nog kan worden ingericht tot extra kamers.
Er is nog de mogelijkheid om een fietsenberging of carport te plaatsen.

De woning beschikt over vloerverwarming en zonnepanelen. De afwerking kan nog vrij worden gekozen volgens eigen smaak. Er wordt enkel met gerenommeerde aannemers gewerkt.

Dit is een prachtige, ruime nieuwbouwwoning met een laag energieverbruik.
Een exclusieve eigendom in een leuke omgeving!

Contacteer ons kantoor voor meer info betreffende dit unieke project!


Niet gevonden wat u zocht? Schrijf u dan vrijblijvend in op onze nieuwsbrief en blijf op de hoogte van ons recentste aanbod.
Schrijf u in
Terug naar boven
Sluit menu BiX estate